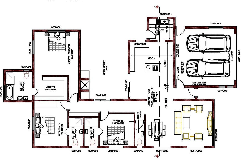
U-SHAPED HOME:
* Wind Protected Protected courtyard for entertainment, reachable from Kitchen/Living area and Hallway. Developer will change this area to indoor entertainment area
* Popular layout to make the best of Swakop Weather
Great finishes:
* Exposed wood beams in living area
* Granite tops in kitchen
On offer (see attached layout)
* Reception area
* Living area, catering for lounge/dining room, open plan with kitchen
* Large kitchen, with island, and space for breakfast table and chairs
* From kitchen area is a slider to the wind-protected courtyard, with outdoor BBQ. Developer will change this to indoor entertainment area
* Guest loo
* 3 Bedrooms, all with private bathrooms
* Main bedroom has dressing room
* 3 Bathrooms:
*** Main with bath, shower, double basins, toilet
*** Other bathrooms with shower, basin, toilet
* Double garage, direct access into home
General:
* Our images reflects previous developments. Higher end finishes expected in this new home
* Erf size: 800m2
* Home 213m2, Garages 37m2, TOTAL 250m2
Price: N$4 900 000