Outjo: Large and Secure Home for Sale

N$1,500,000
Property Details

This home is ideal for a big family, it is very spacious and secure and is situated in a very quiet area of town.

With 3 Single garages with extended roof to park 4 vehicles with paving in front of the garages.

A big, enclosed veranda to the front of the home and a cool and covered veranda at the back of the home.

This home has 5 bedrooms with BIC, the main bedroom with an on-suite full bathroom.

2 Separate bathrooms, Livingroom with a beautiful working fireplace, dining room, and a family kitchen with BIC and island seating 8 persons.

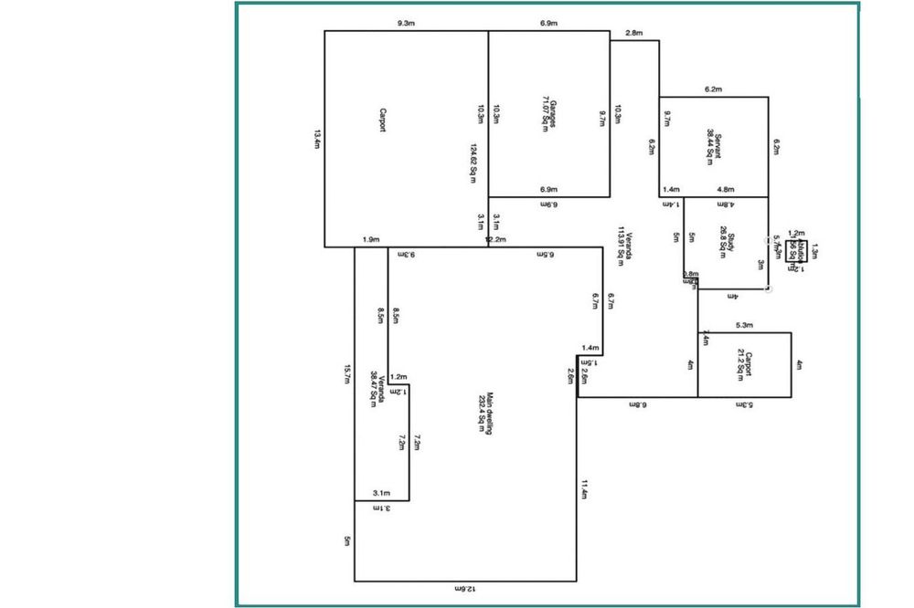
Main House: 232m2

  • Large family kitchen with build in cupboards, and island seating 8 person
  • Large living room with built-in fireplace
  • Dining room
  • Hallway with linen cupboard
  • 5 bedrooms, all have built-in cupboards
  • Main bedroom with on-suite bathroom with bath, shower, toilet and basin.
  • 2 separate bathrooms, one with bath, basin, and toilet, second bathroom with shower, basin and toilet.
  • Veranda – 152m2

Outside Buildings:

  • Veranda – 152m2
  • Office
  • Flatlet with 1 bedroom, bathroom with shower, toilet and basin – 67m2
  • Storage room
  • 3 Garages – 71m2
  • Iron sheet covered Carport for 4 Vehicles – 146m2
  • Partially paved in the front yard

General:

  • Home is fully tiled
  • All windows have burglar bars and outdoors have security doors fitted.
  • Pre-paid electricity
  • Municipal Water
  • Small fruit trees garden to the back and vegetable pad.
  • Back stoep with braai area and sink
  • Palisade with brick columns in front of the house, remainder is fenced in.
  • Size: 1400m2
  • Property Size: Main home 232m2, Flat 67m2, Garage 71m2, Veranda 152m2, Carports 146m2

Price: N$ 1 500 000

Property Features
Property Type
House
Bedrooms
5
Bathrooms
5
Garages
3
Covered Parking
4
Floor Size
370m²
Land Size
1,400m²
Living Area
2
Additional Information
Bedroom
Main has private bathroom and dressing room area
Bathroom
Both with shower, bath, basin, toilet
Location
Make an enquiry
Interested in this property? Please fill in your details below, and we will contact you as soon as possible.
By clicking on "submit" you agree to our privacy policy.
Property Alerts
Receive email alerts for properties matching your criteria.
You may also be interested in these properties
N$ 1,940,000
House for sale in Outjo Central
Outjo: Very Neat 5 Bedroom Home At The Right Price
Spacious home with five bedrooms, large reception areas, and outdoor entertainment space on a 1400m2 lot. Price: N$1 940 000.
5
3
2
410m²
1,400m²
N$ 1,620,000
House for sale in Outjo Central
Reduced
Ext 1, Outjo: Low Maintenance, Rustic Home Is For Sale
Three-bedroom home with potential for expansion, large yard, and pool. Includes garage and carport. Price: N$1 620 000.
3
2
1
201m²
1,620m²
N$ 1,065,000
House for sale in Outjo Central
Outjo: Quaint Cottage-style Home For Sale
Cottage with 2 bedrooms, 1 bathroom, and a detached bachelor flat on 1480 m² land. Total size: 220 m².
2
1
220m²
1,480m²